吹抜と畳で広がる、家族がつながる住まい|SENSE|大阪エリアの分譲住宅(新築一戸建)・土地ならALLAGI株式会社

PLAN COLLECTION

厳選プラン

Share

27.98

吹抜と畳で広がる、家族がつながる住まい

吹抜と畳で広がる、家族がつながる住まい

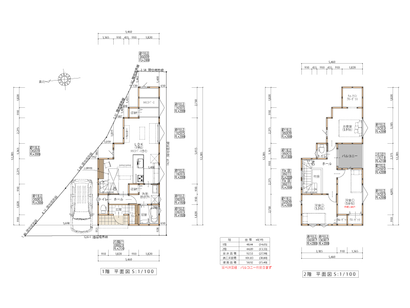
① 吹抜でつながる開放的なLDK

1階のLDK(19帖)には大きな吹抜が設けられており、上下階の一体感と明るさを実現しています。リビングに入った瞬間に天井の高さと光の広がりを感じられ、コンパクトな建物規模を感じさせない豊かな空間体験が魅力です。2階のホールからもリビングを見下ろせるので、家族の気配を感じながら過ごすことができます。

② 多用途に使えるタタミスペース

1階LDKの一角にはタタミスペースが設けられています。小さな子どもの遊び場、来客時の簡易的な寝室、家事の合間の休憩など、多用途に使えるのが強みです。洋室とは違った落ち着きがあり、暮らしに柔らかなアクセントを加えています。

③ 収納計画と生活動線の工夫

玄関にはシューズクローク、各階には収納スペースが要所に配置されており、物の居場所がしっかり確保されています。2階は主寝室+ウォークインクローゼットに加えて洋室2室があり、子ども部屋や書斎などライフスタイルに合わせて柔軟に使えます。1階で生活が完結しつつ、2階の居室が将来まで対応できるバランスの良いプランです。

DATA

坪数 / 27.98坪  
間取り / 3LDK  
想定構成 / 4人家族

MENU CLOSE